Недвижимость без посредников
Для редактирования анкеты введите её номер и пароль

№ Объявления:
Пароль:
Забыли пароль?

 
Для поднятия анкеты введите её номер и пароль

№ Объявления:
Пароль:
Забыли пароль?

 
Для удаления анкеты введите её номер и пароль

№ Объявления:
Пароль:
Забыли пароль?

 

Выбор города


купить дачу говейново

Это риэлтор?
0
0
0% что это
собственник
купить дачу говейново (фото №1)
купить дачу говейново (фото №2)
купить дачу говейново (фото №3)
купить дачу говейново (фото №4)
купить дачу говейново (фото №5)
купить дачу говейново (фото №6)
купить дачу говейново (фото №7)
купить дачу говейново (фото №8)
купить дачу говейново (фото №9)
купить дачу говейново (фото №10)
купить дачу говейново (фото №11)
купить дачу говейново (фото №12)
купить дачу говейново (фото №13)

Общие данные

Город:
Москва
Операция:
продаётся
Тип недвижимости:
Дача
Улица, Дом:
Говейново
До метро:
20 мин. пешком
Всего этажей:
2
Цена:
990,000 рубл.

Дополнительная информация

Описание:
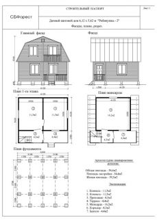
ДАЧА ДОМ 16 соток. 24 км от г. Дмитров. По Дмитровскому, Рогачевскому,либо Ленинградскому шоссе,зависимо от загруженности. Дмитровский р-н. д. Говейново. До Дмитрова 20 минут (его проезжать не нужно).Участок правильной формы .На участке дом каркасно щитовой 6.12х5.62. Фундамент дома: Столбчатый, опорный, на песочной подушечке шириной 100 мм, из фундаментных блоков 200х200х400 мм установленных на армированные плиты 400х400х50 мм. Стенки: Каркасно-щитовые, утеплены (Минеральное волокно 0,37 Т50), обшиты снаружи вагонкой, снутри – вагонкой. Вагонка снаружи бьется покрытыми цинком гвоздями. Окна: Двойные окна ОДО. Пол: Щитовой, утеплен (Минеральное волокно 0,37 Т50), настил – шпунтованная доска т.21 мм. Потолок: Обшит вагонкой, утеплен (Минеральное волокно 0,37 Т50). Фронтоны: Каркасной конструкции, обшиты снаружи вагонкой. Прихожая: Обшита изнутри вагонкой, не утеплена. Столярные изделия: Оконные блоки марки ОДО 1000х1160мм на 1-ом этаже и мансарде с одинарным переплетом и двойным остеклением. Дверные блоки 800х1985мм. Входной дверной блок с филенчатым полотном, межкомнатные дверные полотна с фанерными вставками. Крыша: Покрытыя цинком профилированная сталь. Вокруг лесной массив. Охрана.Круглогодичный асфальтированный подьезд.Электроэнергия по участку 15 кВт(можно 3 фазы). Водопровод из готовой скваженны на участке. СНТ окружено лесом.Чрезвычайно прекрасные места с огромным множеством грибов и ягод.Источник. Охот-хозяйство"Динамо". Рыбалка на реке Яхрома.В пешей близости возле 30 прудов Вправду экологически свежая зона М.О. Без риелторов. Показ участка не исключён в хоть какой день, звоните! Предлагаю СРОЧНО !

Расположение


Контакты

Продавец:
Хозяин
Телефон:
Объект снят с продажи
Дата публикации:
20.04.2019


Покажите объявление друзьям!




Проголосуйте!
Это риэлтор?
0
0
0% что это собственник
Всего проголосовало: 0

Похожие объявления

Дача


Цена: 1.000 млн руб.

Подробнее >>

Дача


Цена: 1.000 млн руб.

Подробнее >>

Дача


Цена: 960,000 руб.

Подробнее >>
Аренда квартир без посредников
© 2011-2019 Риелторов.нет
Яндекс.Метрика


Разработка сайта Petrlev.pro