Недвижимость без посредников
Для редактирования анкеты введите её номер и пароль

№ Объявления:
Пароль:
Забыли пароль?

 
Для поднятия анкеты введите её номер и пароль

№ Объявления:
Пароль:
Забыли пароль?

 
Для удаления анкеты введите её номер и пароль

№ Объявления:
Пароль:
Забыли пароль?

 

Выбор города


купить магазин митинская ул 36

Это риэлтор?
0
0
0% что это
собственник
купить магазин митинская ул 36 (фото №1)
купить магазин митинская ул 36 (фото №2)
купить магазин митинская ул 36 (фото №3)
купить магазин митинская ул 36 (фото №4)
купить магазин митинская ул 36 (фото №5)
купить магазин митинская ул 36 (фото №6)

Общие данные

Город:
Москва
Операция:
продаётся
Тип недвижимости:
Магазин
Улица, Дом:
Митинская ул, 36
Станция метро:
Митино
Округ:
Северо-Западный административный округ (СЗАО)
Район:
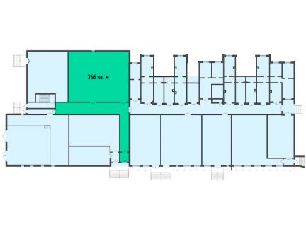
Общая площадь (м2):
346.7
Цена:
94,358 млн рубл.

Дополнительная информация

Приватизация:
Приватизирована
Описание:
Продажа готового арендного бизнеса. Готовый арендный бизнес 346,7 кв. м Срок контракта длительной аренды - 7 лет Ставка за м2/год - 25 889 руб. Индексация - 5% Доходность - 14% Окупаемость - 8 лет Готовый арендный бизнес представлен в торговой галерее Митинская 36 на первой линии улицы Митинская. В 25 метрах располагается выход из станции метро «Митино», которым пользуются обитатели 3-х больших ЖК на 8 тыс. человек и остальные обитатели и гости района. Помещение с современными системами удобства располагается на первом этаже галереи, рядом со входом. Высота потолков - 3,2 м. Для собственников, арендаторов и покупателей сделаны все условия: подходящий локальный климат за счет приточно-вытяжной вентиляции, 24 часа в день охрана и системы наблюдения, влажная точка, зона разгрузки, место для вывески на фасаде, электроэнергия 100 Вт/м2 и многофункциональные планировки.


Информация о доме

Параметр домаЗначение
Район Митино
Округ СЗАО
Индекс 125430
Построен в 1992 году
Фонд Жилой
Дом серии П-44
Высота потолков 270 см. и более
Тип постройки Панельный
Этажность 17
Всего квартир 128
Площадь (общая) 9703 кв.м.
Площадь (жилая) 4057 кв.м.
Площадь нежилых помещений 2712 кв.м.
Всего нежилых помещений 4
Кол-во подъездов 2
Наличие мусоропровода есть
Наличие лифтов 1 пассажирский, 1 грузовой
Рядом находятся метро м. Митино - 120 м., м. Пятницкое шоссе - 1200 м., м. Волоколамская - 1600 м., м. Мякинино - 2600 м.

Расположение


Контакты

Продавец:
BR Group
Телефон:
Объект снят с продажи
Дата публикации:
06.12.2018


Покажите объявление друзьям!




Проголосуйте!
Это риэлтор?
0
0
0% что это собственник
Всего проголосовало: 0

Похожие объявления

Магазин 346.7 м2

м. Митино

Цена: 90.358 млн руб.

Подробнее >>

Магазин 368.0 м2

м. Мичуринский проспект

Цена: 91.000 млн руб.

Подробнее >>
Аренда квартир без посредников
© 2011-2019 Риелторов.нет
Яндекс.Метрика


Разработка сайта Petrlev.pro