| 
	  
	  
	  
	  
	  
        | 
      
	 
      Общие данные
      
        
          Город:  | 
          Москва  | 
         
        
          Операция:  | 
          сдается внаем  | 
         
        
          Тип недвижимости:  | 
          Комм. недвижимость  | 
                 
          Улица, Дом:  | 
          Москва, 2-я Рыбинская улица, 12  | 
         
        
          Станция метро:  | 
          Красносельская  | 
         		
          Округ:  | 
          Восточный административный округ (ВАО)  | 
         
				
          Район:  | 
           | 
         
				
		
		
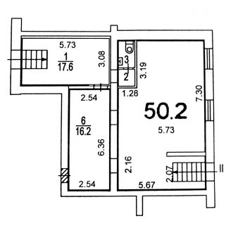
          Общая площадь (м2):  | 
          88.0  | 
         
		        
          Цена:  | 
          130,000 рубл. за месяц  | 
         
		       
       
      Дополнительная информация
      
	          
          Описание:  | 
          Большой авто трафик. 1-ая линия. Вход с ТТК. Доп вход для разгрузки продукта. Зальная планировка. Возможность получения лицензии на алкоголь.Высочайшие потолки, электроэнергия 25 кВт. Смонтирована общеобменная вентиляция и кондиционирование.
 
   | 
         
		         
      Информация о доме
| Параметр дома | Значение |  | Район |  Сокольники |  | Округ |  ВАО |  | Индекс |  107113 |  | Построен в |  1958 году |  | Фонд |  Жилой |  | Дом серии |  индивидуальный проект |  | Высота потолков |  300 см. и более |  | Тип постройки |  Кирпичный |  | Этажность |  5 |  | Всего квартир |  69 |  | Площадь (общая) |  4958 кв.м. |  | Площадь (жилая) |  3011 кв.м. |  | Площадь нежилых помещений |  144 кв.м. |  | Всего нежилых помещений |  3 |  | Кол-во подъездов |  4 |  | Наличие мусоропровода |  нет |  | Наличие лифтов |  |  | Рядом находятся метро |  м. Красносельская - 1300 м., м. Рижская - 1400 м., м. Сокольники - 1400 м., м. Комсомольская - 1600 м., Внимание! Дом под реновацию! |   	
Расположение
	       
      Контакты
      
        
        
          Продавец:  | 
          Михаил Николаевич  | 
         
        
        
          Телефон:  | 
          Объект снят с продажи  | 
         
		 
		 
          Дата публикации:  | 
          26.12.2018  | 
         
       
      
  
      
  
| Покажите объявление друзьям!
 | 
	
		
 | 
	
	
 | 
 | 
 
 
 
 
 
  
      
      
    
    
      
        | 
         Это риэлтор? 
 
  0 
     
     
      0 
       
       | 
        0% что это собственник 
        Всего проголосовало: 0 
         | 
       
     
     
      
 Похожие объявления				
 
        Комм. недвижимость 80.0 м2 
м. Авиамоторная  
Цена: 130,000 руб. 
     Подробнее >>
         
 | 
						
 
        Комм. недвижимость 85.0 м2 
м. Бабушкинская  
Цена: 130,000 руб. 
     Подробнее >>
         
 | 
						
 
        Комм. недвижимость 82.0 м2 
м. Братиславская  
Цена: 135,300 руб. 
     Подробнее >>
         
 | 
				 	 
      
      
       |